ПИК известен своей любовью к масштабным ЖК, однако “Бутово Парк” кажется чересчур большим даже для него – 250 гектар земли, более 80 домов, почти полтора миллиона квадратных метров недвижимости. Вероятно, поэтому строительством ПИК занимается не в одиночку. И поэтому же это строительство всё никак не может закончиться. Рассказываем о прошлом, настоящем и будущем одного из самых крупных подмосковных ЖК.
ПИК на правах самого крупного российского девелопера одновременно считается и самым надёжным. Благодаря использованию панельной технологии строительства он возводит свои дома быстро и, кажется, легко, поэтому такое мнение имеет право на существование. Но вот огромный жилой комплекс “Бутово Парк”, раскинувшийся между Варшавским и Симферопольским шоссе, может подточить чужую уверенность в ПИКе. Достаточно сказать, что история объекта началась в 2011-м году...
Один из крупнейших микрорайонов Подмосковья

“Бутово Парк” – это масштабный жилой комплекс, раскинувшийся на 250 гектар земли в Ленинском районе Подмосковья. Его строительством совместно занимаются сразу две опытные и крупные компании – ПИК и “ДСК-1”. Но, видимо, объём работ настолько велик, что даже их совместных усилий недостаточно, чтобы выполнять их в срок. Возведение “Бутово Парк”, разделённого на три почти самостоятельных и отличных друг от друга квартала, началось ещё в 2011-м году, однако целиком объект всё ещё не готов.

Впрочем, если знать, как создатели “Бутово Парк” его себе представляют, всё встанет на свои места. Это около 80 разных жилых домов, различающихся и конструкцией (есть как панельные, так и монолитно-кирпичные), и высотой (от 9 до 25 этажей), и внешним видом вообще (среди фасадов в привычных бежевых и коричневых цветах попадаются и салатовые и совсем неожиданные розовые). Даже класс комплекса тяжело определить однозначно – кто-то справедливо приписывает его к стандарту-, другие говорят об уверенном комфорте-, а представители застройщика бросают фразы вроде “по некоторым характеристикам это вполне себе бизнес-”. Но так ли плохо, что об этом ЖК не получается говорить категорично? В нём, как в большом городе, можно найти удачные и не очень удачные места, нужно просто радоваться первым и не расстраиваться из-за вторых.

Если продолжать сравнение микрорайона из трёх кварталов с настоящим городом, то нужно сказать, что город этот будет в полной мере обеспечен всем необходимым. Под совсем не маленькие жилые корпуса отдана далеко не самая значительная часть территории, только 20%, а всё остальное приводится в порядок, благоустраивается и застраивается объектами собственной инфраструктуры. Процесс это нелёгкий, вот, видимо, с этим и связаны сложности со сдачей отдельных корпусов. Безнадёжным долгостроем “Бутово Парк” не назовёшь, однако проблемы и задержки в его восьмилетней истории были.

Хотя вообще, для ПИКа и “ДСК-1” проблемы не типичны. Первая компания на данный момент является крупнейшим застройщиком в стране, отличается верностью своему своду правил (“ПИК-Стандарт” – сборник деталей, касающихся всего, от МОПов и фасадов до планировок и отделки квартир, которого ПИК всегда придерживается) и уж точно лучше других подходит для возведения такого большого объекта, как “Бутово Парк”. “ДСК-1”, может, и уступает ПИКу в объёмах работ, но точно не уступает в опыте – она появилась ещё в 1961-м году, может похвастать множеством готовых микрорайонов в Подмосковье и высокой скоростью строительства. Сомнений в том, что “Бутово Парк” всё-таки будет закончен, мало, но возможно, время всё же наложит свой отпечаток на итоговый результат. Желанное разнообразие, которое должно было стать преимуществом комплекса, стало его проблемой.
Высокие стандарты и не такие уж высокие цены
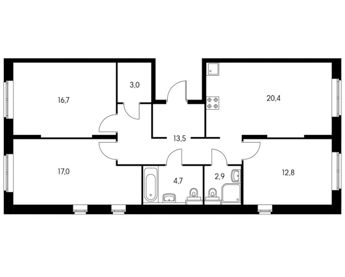
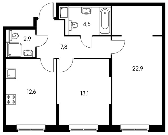
Так как дома “Бутово Парк” различаются даже снаружи, внутри у них тоже хватает различий – и часть этих различий касается и квартир. Если вы разбираетесь в сериях панельных домов, то вам могут многое сказать следующие буквосочетания – П44К, П44Т, 111М, П3М… Если всё это для вас – пустой звук, то просто знайте, что сможете выбрать из квартир с одной, двумя и тремя комнатами. Площади жилых помещений в “Бутово Парк” варьируются от 20 до 93 квадратных метров.




Квартиры сдаются как с отделкой, так и без неё, но первый вариант при покупке кажется чуть более предпочтительным. Во-первых, из-за расположения объекта – заниматься ремонтом и возить сюда все необходимые материалы из Москвы будет не так уж просто. Во-вторых, из-за того, что предложения ПИКа большинство обычно устраивают. Планировки у них удобные и, что называется, функциональные (здесь, например, есть всеми любимые распашонки, а ещё трёхкомнатные квартиры сразу с четырьмя балконами, при том, что балконы для ПИКа вообще-то тоже большая редкость), а стиль отделки – довольно минималистичный “скандинавский”. Посмотреть на готовые квартиры можно в шоу-румах “Бутово Парка”.






Один квадратный метр в данном ЖК сейчас стоит от 87,4 до 138,9 тысяч рублей. Чтобы приобрести квартиру, нужно будет заплатить от 5 до 8,9 миллионов – и для предлагаемых площадей ценник нельзя назвать завышенным. Как вы понимаете, частично объект уже сдан, но некоторые корпуса ещё нужно подождать – скажем, ввод в эксплуатацию дома 19-21 запланирован только на 2020-й год.
18 тысяч парковочных мест – и ещё кое-что
Раз уж застройщики прямо в описании проекта говорят о том, что большую его часть займут благоустроенная придомовая территория и объекты инфраструктуры, можно рассчитывать на что-то эдакое. В “Бутово Парк” и правда будет чуть больше всего того, что обычно предлагается в подобных микрорайонах. И речь не только о масштабе, хотя и о нём тоже – количество уютных зелёных дворов, а также детских и спортивных площадок вряд ли поддаётся исчислению, а вот, например, парковочных мест во всех подземных и наземных паркингах ЖК будет около 18 тысяч. Количество других объектов поменьше, но в рамках одного ЖК и оно тоже поражает – несколько школ, несколько детских садов, большая поликлиника, православный храм… А ещё будут самые разнообразные центры, практически кластеры, собирающие под своей крышей своеобразные кружки по интересам – культурно-просветительский, физкультурно-оздоровительный, торгово-развлекательный.

Впрочем, всё перечисленное выше – не щедрые подарки застройщиков, а реально необходимая району инфраструктура. Не стоит надеяться на обилие школ и магазинов вокруг – ближайшие сосредоточены в более-менее крупном городе Видное. Ну, в отсутствие всего этого приходится наслаждаться подмосковной экологией. Помимо собственных аллей (не зря же ЖК называется “Бутово ПАРК”!), хороший воздух обеспечивают большие лесные массивы вокруг домов.

Транспортную доступность ЖК не назовёшь завидной, однако выбор, как добираться в Москву, у его обитателей всё же есть. Автомобилисты могут выбирать между Варшавским, Симферопольским и Расторгуевским шоссе. Те, кто предпочитают пользоваться общественным транспортом – между станциями метро, до которых им нужно будет ехать на автобусе. Тут варианты такие – “Аннино”, “Бульвар Дмитрия Донского”, “Улица Скобелевская”.

Наше мнение
От кого ещё можно было ожидать крупнейший микрорайон Подмосковья, как не от крупнейшего застройщика России? Правда, чего нельзя было ожидать, так это того, что он окажется не по зубам даже ПИКу, ещё и вместе с “ДСК-1”. И пусть с наскока покорить территорию не получилось, будем надеяться, что медленный и постепенный строительный процесс сделает “Бутово Парк” только лучше.
Плюсы
- Большое разнообразие домов и квартир;
- Есть варианты с отделкой и без;
- Очень богатая собственная инфраструктура;
- Хорошая экология;
- Сразу два надёжных застройщика.
Минусы
- Строительство ведётся долго и с проблемами;
- Недостаток районной инфраструктуры.
05.02.2019