Шикарный город-курорт у берегов канала имени Москвы возводит в Левобережном районе САО столицы группа компаний «Мангазея». На 14 га будет всё в формате «город в городе»: умопомрачительные небоскрёбы, собственные школа и садик, магазины и салоны, рестораны и спортивный центр – словом, искать благ цивилизации в удалении от дома резидентам «Мангазея на Речном» не придётся.
Покупателям предлагаются на выбор квартиры в жилых корпусах, которые располагаются в три линии вдоль реки. Видовые характеристики у такого жилья будут просто образцовыми. Рассказываем подробности планировок, расположения и окружающей инфраструктуры.
О проекте: город-курорт у воды
Жить в столице и одновременно иметь возможность ежедневно прогуливаться по набережной, принимать солнечные ванны – такие возможности открываются для покупателей жилья в городе-курорте «Мангазея на Речном». Застройщик выстраивает 18 корпусов в три линии вдоль реки Химки и канала им. Москвы. Высота зданий различается и варьируется в пределах от 10 до 68 этажей.
Отделка фасадов выполняется бетонными плитами и керамогранитом крупного формата. Цвета выбраны в естественной палитре. Здесь сочетаются различные текстуры и формы, что создаёт ощущение расслабленности и атмосферы круглогодичного отдыха.
Самыми привлекательными в зданиях, пожалуй, являются большие окна, из которых открываются восхитительные виды на воду и окружающие парки.
Отдельного внимания заслуживает гранд-лобби. Выполненное по проекту бюро KNKO, входное пространство поражает масштабами и великолепием. Здесь царят натуральные материалы: камень, металл, дерево. Высокие потолки дополняют огромные панорамные окна, уюта добавляют авторские люстры, арт-объекты и мягкая мебель в зонах ожидания. Зона ресепшен украшена стойкой из натурального мрамора. Здесь вас встретит консьерж, который поможет с решением бытовых вопросов.
Помимо этого МОПы в городе-курорте «Мангазея на Речном» отличает высокая функциональность. В распоряжении жителей находятся такие необходимые сегодня зоны, как коворкинг и фитнес-рум, зона отдыха и даже собственный кинотеатр.
Главный акцент застройщик делает на внутренней инфраструктуре города-курорта. Чтобы соответствовать уникальному названию, на огромной территории квартала создадут все условия для полноценного отдыха. Здесь протянется шикарный прогулочный бульвар вдоль набережной, длина которой превышает 3 километра. Застройщик высадит массу зелёных насаждений, вокруг жилых домов организует зоны отдыха без машин.
Для оформления дворов используются природные материалы, которые позволяют создать атмосферу, максимально приближенную к естественной: камни, песок, дерево, мох. Ландшафтный дизайн также предполагает обустройство водопадов, ручьёв и прудов. Авторство оформления придомовой территории принадлежит бюро CM International.
Для семейных покупателей важным моментом является наличие доступных образовательных объектов. Обучаться вблизи от дома мечтают, наверное, все дети и их родители. ГК «Мангазея» учитывает и реализует эти пожелания. В «Мангазея на Речном» застройщик предусматривает строительство школы на 825 мест и детского садика, рассчитанного на 150 детишек.
Для любителей здорового образа жизни в городе-курорте построят дом Wellness. Это место станет точкой притяжения для всех жителей, ведь здесь можно будет найти и спортивный клуб, и бассейн, и пройти спа-процедуры, воспользоваться сауной, услугами профессиональных массажистов.
На первых этажах корпусов, традиционно, откроются коммерческие объекты. А вишенкой на тортике станет роскошная взрослая сосна, которую высадят в центре дворового пространства «Мангазея на Речном». В новогодние праздники она станет центром притяжения жителей квартала, а в будни вокруг неё можно будет прогуливаться и мечтать.
Период реализации такого масштабного проекта займёт не один год. Первую очередь застройщик планирует сдать уже в 3 квартале 2027 года, выдача ключей покупателям состоится до конца того же года, как раз под новогоднюю ёлочку. В её состав входит два корпуса - № 8.1 и 8.2.
Стоимость лотов в новостройке бизнес-класса «Мангазея на Речном» на сегодняшний день начинается с 19,4 млн руб. Максимальный ценник достигает 57,5 млн руб.
Расположение и транспортная доступность: в окружении парков и воды
В нескольких сотнях метров от «Мангазея на Речном» раскинулся парк Северного речного вокзала, рядом с ним – парк Дружбы. Прямо напротив окон, отделённый от корпусов лентой канала имени Москвы, шумит парк Северное Тушино. Помимо собственных зон отдыха мест для пеших прогулок у резидентов «Мангазея на Речном» будет предостаточно.
Инфраструктурное окружение города-курорта находится в стадии становления. Главным фактором при этом является промышленное прошлое локации. На сегодняшний день район активно развивается, обрастая современными коммерческими и социальными объектами. Но большинство из действующих школ, садиков, больниц располагается по другую сторону Ленинградского шоссе.
Ближайшим детским дошкольным учреждением является садик, расположенный в 400 метрах от новостройки. Общеобразовательная школа № 167 находится в полукилометре от «Мангазея на Речном». В 600 метрах работает одна из лучших московских школ – Кембриджская международная школа.
В радиусе 500 метров располагаются магазины и сервисы, например, «Пятёрочка», «Красное&Белое», «Азбука Вкуса». Северный речной вокзал располагается в 700 метрах от пятна застройки.
Транспортная доступность города-курорта обеспечивается Ленинградским шоссе. До выезда на данную трассу от корпусов «Мангазея на Речном» несколько сотен метров.
От станции метро «Речной вокзал» до жилого квартала четверть часа пути. Расстояние составляет 1,3 км. Также можно воспользоваться речными трамваями, причалы которых находятся в шаговой доступности.
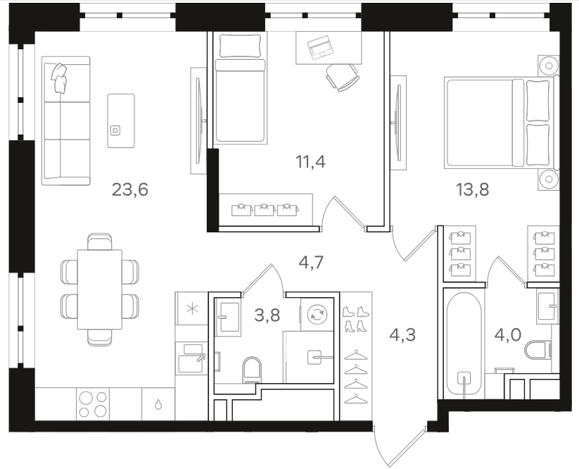
Квартирография и планировки
В общей сложности проект «Мангазея на Речном» насчитывает более чем 5 тысяч лотов. В первую очередь, которая состоит из двух корпусов, входит 602 квартиры. Реализуются они в черновом варианте, так что покупателям, как говорится, и карты в руки: дизайн интерьера они смогут выполнить полностью на свой вкус.
Среди планировок есть студии, а также лоты с 1,2 и 3 спальнями. Среди реализуемой недвижимости можно найти также и эксклюзивные лоты с террасами, просторными кухнями-гостиными, несколькими санузлами.
Многие квартиры будут видовыми. Особенно впечатляющие пейзажи доступны покупателям жилья в корпусах первой линии. Данные лоты застройщик в продажу ещё не выводил. Площадь квартир в «Мангазея на Речном» начинается с 19 кв. м. Самая большая квартира имеет метраж 125 «квадратов». Высота потолков зависит от этажа и варьируется в пределах 2,95 – 5,05 м.




Заключение
Сегодня всё большее количество покупателей отдаёт предпочтение жилью у воды. ГК «Мангазея» вывела на рынок проект, привлекательный по многим параметрам. Застройщик позиционирует его как город-курорт – посмотрим, насколько жильё соответствует заявленном у статусу.
Главным фактором в «Мангазея на Речном» является его местоположение на берегу канала им. Москвы, недалеко от парков и метро. Действительно, комплекс можно назвать курортом: здесь есть собственная набережная, зоны отдыха у воды, речные трамвайчики останавливаются просто рядом.
Немаловажно и то, что в новостройке будет своя собственная инфраструктура: образовательная, спортивная, коммерческая. Большой выбор планировок сделает интересным подбор жилья в жилом квартале. К тому же недвижимость в «Мангазея на Речном» подойдёт не только для собственного проживания, но и для инвестирования.
ПЛЮСЫ
-
Масштабный проект
-
Большой выбор планировок
-
Близость воды
-
Развитая собственная инфраструктура
-
Метро в шаговой доступности
-
Развивающаяся локация
МИНУСЫ
- Строительство продлится ещё не один год
12.12.2025