Современное комфортное жильё в 20 минутах от Арбата – от такого предложения ГК «Основы» отказаться трудно. Девелопер возводит жилой комплекс бизнес-класса «УНО.Горбунова» в обжитом Можайском районе на западе Москвы. Новостройку отличают уникальные волнообразные фасады – именно благодаря им окна квартир не будут пересекаться друг с другом, и вы сможете наслаждаться неограниченными панорамами города.
Комплекс удачно расположен в шаговой доступности от станции МЦД «Сетунь», имеет удобные выезды на ключевые автомагистрали Москвы. О подробностях квартирографии, благоустройства и, конечно, ценах рассказываем далее в обзоре.
О проекте: выразительная пластика фасадов + дизайнерское лобби
Фасады двух корпусов, которыми представлен ЖК «УНО.Горбунова», имеют уникальный внешний вид. Благодаря удачному решению в виде волнообразной конфигурации, из окон квартир можно увидеть не ограниченные ничем панорамы Ромашковского леса, который находится в километре от новостройки. Сами окна имеют высоту от 2,1 метра, что обеспечит резидентам не только красивые виды, но и много света в комнатах.
Высота зданий 19 и 35 этажей. Приятные естественные цвета фасадов перекликаются с большими сияющими окнами, создавая неповторимую атмосферу домашнего уюта. Тридцатипятиэтажная башня станет значимой доминантой локации. Именно её застройщик сдаёт в первую очередь – в 1 квартале 2028 года. Заселение начнётся не позднее 21 июня 2028-го – до этого времени покупатели получат свои ключи.
Стильная входная группа встретит жителей панорамным остеклением и домофоном. Вход в корпус в целях безопасности будет осуществляться только по электронному ключу. В холле установят кофе-пойнт и стойку консьержа. Застройщик организовывает также уютную, наполненную светом гостевую зону с мягкой мебелью и стильным дизайном.
Спуститься на подземный уровень жители «УНО.Горбунова» смогут на скоростных бесшумных лифтах. Кабинки довезут вас к самому двухуровневому паркингу прямо от дверей квартиры. Здесь же разместятся кладовые помещения, которые станут оптимальным вариантом для хранения консервации, например, или крупногабаритных вещей.
В подземном паркинге можно будет приобрести комфортное машино-место, выбрав из 165 вариантов. Ещё 34 авто сможет разместиться на придомовой территории.
Благоустройство двора в ЖК «УНО.Горбунова» стоит рассмотреть подробно. Здесь застройщик обустраивает зоны отдыха, детскую и спортивную площадки самодостаточно и оригинально, так что складывается впечатление, что всё это было здесь уже десятки лет.
Детская игровая зона задумана двухуровневой, чтобы детвора могла вдоволь налазится и поиграть. На ней оборудуют качели, горку, тематические арт-объекты. Уютный двор благоустроят с элементами ландшафтного дизайна и перепадами высот. Разобьют газоны, высадят множество цветов, кустарников и деревьев.
Интересным моментом является использование инновационных технологий для экономии финансовых расходов резидентов ЖК «УНО.Горбунова». Например, на кровле застройщик устанавливает оборудование для аккумулирования солнечной энергии. Таким образом планируется освещать места общего пользования.
Группа компаний «Основа», которая реализует проект «УНО.Горбунова», специализируется на строительстве не только жилой недвижимости. В портфеле девелопера с 2016 года находится немало коммерческой недвижимости, а также гостиницы и технопарки.
Согласно данным ЕРЗ, на сегодняшний день ГК «Основа» входит в ТОП-15 столичных застройщиков по объёму строительства. В жилищном строительстве застройщик имеет достаточно большой опыт, возведя около 2 млн кв. м жилья.
Расположение и транспортная доступность: обжитой район и близость зелёных зон
Можайский район ЗАО имеет множество плюсов, которые оценят покупатели жилой недвижимости. Во-первых, здесь хорошо развита инфраструктура, есть множество как коммерческих, деловых, так и социальных объектов. В шаговой доступности от ЖК «УНО.Горбунова» находятся многочисленные магазины, садики, зоны отдыха и парки.
Во-вторых, Можайский район – это про экологию. На его территории берут истоки пяти рек, в том числе – Москвы-реки. Здесь расположено крупное водохранилище – Можайское, есть много парков и скверов. Правда, при этом стоит отметить соседство с промзонами, которые протянулись по северной и южной границам района. Но промка «Северное Очаково», где самым крупным был асфальтобетонный завод, на сегодняшний день уже упразднена. То же самое касается и Кунцевской промзоны с её Всероссийским институтом лёгких сплавов. Все производства здесь попали под программу реновации, на смену им приходит жилая застройка.
Транспортная доступность ЖК «УНО.Горбунова» достаточно хороша. До станции МЦД-1 «Сетунь» расстояние составляет 1,1 км, а до станции «Немчиновка» – 1,6 км пути. Дойти до них можно за 10 минут времени. Станция метро «Молодёжная» находится в 10 минутах езды на авто.
От новостройки достаточно быстро можно выехать на МКАД, проспекты Кутузовский и Багратиона. До знаковых мест Москвы резиденты могут добраться весьма оперативно. Например, до инновационного центра «Сколково» можно доехать за 10 минут, до центра столицы – за полчаса.
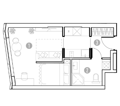
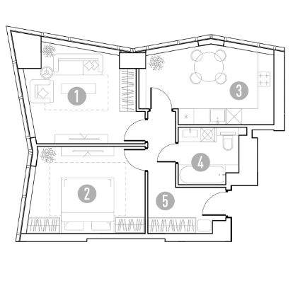
Квартирография и планировки: евроформат, угловое и панорамное остекление, мастер-спальни с собственными санузлами
Из 544 лотов, представленных к продаже в «УНО.Горбунова», можно выбрать и маленькую однушку евроформата, и просторную квартиру с тремя-четырьмя спальнями для большой семьи. Стоимость жилья в проекте на сегодняшний день начинается с 13 млн руб. за 28-метровую однокомнатную квартиру. В её планировке представлен санузел площадью 4,6 кв. м, прихожая с местом для шкафа-купе, кухня-ниша.
В квартирографии очень много нестандартных планировок со скошенными углами, панорамными окнами, высота которых достигает 2,1 м. Из особенностей выделим просторные кухни-гостиные, наличие гардеробных и мастер-спален с собственными санузлами. Высота потолков в проекте 2,7 – 3,4 м.
Самый большой лот в ЖК «УНО.Горбунова» достигает 96 кв. м. Его актуальная стоимость – 40 млн руб. Квартиры реализуются в черновом варианте с установленными входными дверями, разводкой инженерных коммуникаций.




Заключение
ЖК «УНО.Горбунова» возводится в удобной локации на западе Москвы. Рядом пролегают ключевые транспортные артерии столицы, в шаговой доступности есть две станции МЦД-1, что облегчает транспортную доступность новостройки.
Экологические зоны находятся неподалёку: Ромашковский лес, заказник «Долина реки Сетунь», парк «Дубки». В радиусе нескольких сотен метров от ЖК «УНО.Горбунова» расположены инфраструктурные объекты. Словом, окружение жилого комплекса – полноценное и сложившееся.
В квартирографии представлены интересные лоты с нестандартными планировками, отличает которые наличие огромных панорамных окон. Можно выбрать небольшую однушку, также можно купить большую квартиру с несколькими спальнями, площадь которой достигает 96 кв. м. Проект интересен как снаружи, так и изнутри. К нюансам можно отнести высокий уровень загруженности автомобильных дорог и близость бывших промышленных зон. Однако западное направление, в целом, считается одним из самых экологичных в столице благодаря удачной розе ветров и множеству зелёных зон.
ПЛЮСЫ
-
Оригинальные фасады
-
Панорамное остекление
-
Высокие потолки в квартирах
-
Благоприятное окружение
-
Наличие инфраструктурных объектов
-
Приватный благоустроенный двор
-
Многообразие планировок
-
Хорошая транспортная доступность
МИНУСЫ
-
Близость шумных автомобильных трасс
-
Соседство с промзонами
22.03.2026