Апарт-комплекс «ЭвоПарк Измайлово», который ГК «Основа» возводит в районе Перово ВАО, станет перспективным и интересным вложением для тех, кто желает получать пассивный доход от недвижимости.
Корпус с панорамными лотами расположен в пешей доступности от станций метро и МЦК, его окружают зелёные просторы Измайловского парка. Поэтому апартаменты «ЭвоПарк Измайлово» будут пользоваться спросом как у любителей прогулок на природе, так и у тех, для кого вопрос транспортной доступности является определяющим при выборе недвижимости. Рассказываем подробности проекта.
О проекте: авторская архитектура с панорамными окнами и французскими балконами
Силуэт восемнадцатиэтажного монолитного здания, которым представлен апарт-колмплекс «ЭвоПарк Измайлово», отличают изысканные, прямые линии и кажущаяся воздушная лёгкость. На фоне зелени Измайловского лесопарка строение с панорамными окнами смотрится естественно и гармонично, привлекая внимание своими сияющими фасадами.
Правильная геометрия делает акцент на силуэте апарт-комплекса, который выполнен в едином архитектурном стиле от бюро «Открытые мастерские». Утеплённые фасады здания отделаны керамогранитной плиткой светло-серой цветовой гаммы. Некоторую чопорность им придаёт сочетание вертикальных и горизонтальных декоративных панелей.
Внешний облик «ЭвоПарк Измайлово» максимально понятен, а лобби вызывает всяческие восхищения. Его площадь достигает 170 кв. м, остекление в нём – панорамное. В сочетании с потолками высотой 4,2 м входная группа подарит много света и воздуха. Сидеть в гостевой зоне в окружении зелени и дизайнерской мебели захочется вечно.
Функционала лобби тоже не лишено. Здесь предусмотрена стойка консьержа (консьерж-сервис будет предоставлять услуги в режиме 24/7), а также комната матери и ребёнка, колясочная. В лифтовом холле установлена оригинальная подсветка.
В благоустроенном дворе застройщик планирует оборудовать детскую площадку с горками и качелями, установить скамеечки для отдыха, разбить клумбы, и организовать амфитеатр для проведения массовых мероприятий. Словом, организация быта в «ЭвоПарк Измайлово» планируется на высоком уровне.
Относительно инфраструктурных объектов – в апарт-комплексе откроются коммерческие точки и сервисные службы на первом этаже корпуса. Животрепещущий вопрос паркинга и даже подъездных путей ГК «Основа» решила основательно. В ближайших планах застройщика – реконструкция 3,4 км прилегающих дорог, а также строительство паркинга на минус первом этаже. Он будет рассчитан на 49 машино-мест, и ещё столько же авто сможет разместиться на придомовой территории.
Основанная в 2016 году группа компаний «Основа» специализируется на девелопменте в формате «умный дом». В «ЭвоПарк Измайлово» также предусмотрен монтаж данной системы, что существенно оптимизирует процесс оплаты коммунальных платежей, повысит безопасность среды и гарантирует резидентам повышенный комфорт проживания.
Сдать апарт-комплекс застройщик планирует уже в скором времени – в 4 квартале текущего, 2025-го года. Свои ключи покупатели получат до конца апреля 2026 года.
Расположение и транспортная доступность: в двух шагах от метро
Одним из ключевых моментов при выборе жилья для многих покупателей остаётся транспортная доступность новостройки. В этом отношении апарт-комплекс «ЭвоПарк Измайлово» максимально соответствует ожиданиям будущих собственников.
Станция метро «Шоссе Энтузиастов» расположена в пяти минутах ходьбы от корпуса. Ещё одна станция метро, «Андроновка», находится на расстоянии чуть больше километра. Примерно столько же и до станции МЦД «Авиамоторная». К тому же в ближайшем окружении есть множество остановок общественного транспорта – автомобильного и трамвайного.
Если вы – автовладелец и планируете передвигаться на личном автотранспорте, апарт-комплекс вас приятно удивит. Он расположен на пересечении двух значимых столичных магистралей – шоссе Энтузиастов и МСД. За четверть часа вы сможете доехать и до ТТК, и до Садового кольца. Если необходимо будет выехать за пределы МКАД, время в пути до Кольцевой также составит около 15 минут. Единственным нюансом в плане транспортной доступности являются многочисленные пробки на дорогах. Планируя поездку, этот момент следует непременно учитывать.
Что продают: эргономичные апартаменты с панорамными видами
Если вы приобретаете апартаменты, то вопрос их инвестиционной привлекательности находится на первом месте. В «ЭвоПарк Измайлово» реализуется недвижимость, имеющая высокую доходность. Во-первых, площади 289 юнитов оптимально подойдут для арендаторов, среди которых могут быть, например, студенты близлежащих ВУЗов: МИЮ, НИД, МЭИ. Метражи студий – двухкомнатных апартаментов варьируются в пределах 30 – 51 кв. м.
Во-вторых, стоимость лотов достаточно доступна, если учитывать, что новостройка находится в обжитом месте с высокой транспортной доступностью. И к тому же, «ЭвоПарк Измайлово» относится к бизнес-классу, что гарантирует высокое качество и функционал. На сегодняшний день минимальный ценник находится на уровне 9 млн руб. Самый дорогой апартамент в «Эвопарк Измайлово» стоит 16 млн руб.




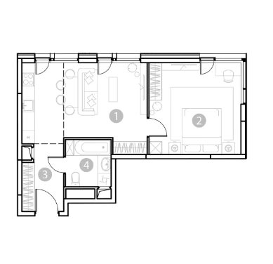
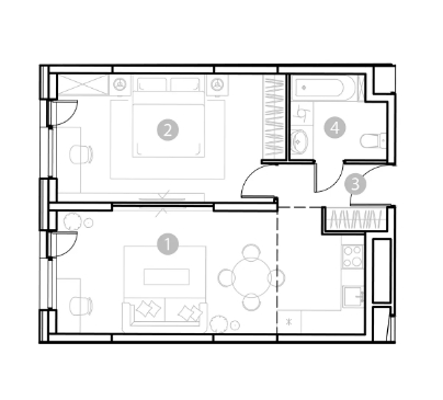
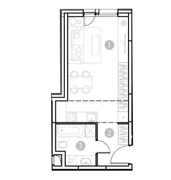
Из особенностей планировок стоит отметить совмещённые санузлы, огромные панорамные окна, подготовку помещений под установку системы «Умный дом». В евродвухкомнатных апартаментах можно сделать удачное зонирование благодаря наличию трёх окон с изящными французскими балконами.
Линейные и угловые планировки позволяют функционально обустроить внутреннее пространство апартов. Отделка не предусматривается, поэтому покупатели могут обустроить дизайн интерьера полностью на свой вкус.
Заключение
В апарт-комплексе «ЭвоПарк Измайлово» опытный застройщик, ГК «Основа», реализует качественную недвижимость по доступной стоимости. Все апартаменты имеют функциональные планировки, панорамное остекление.
Сильными сторонами проекта являются также его месторасположение на пересечении двух транспортных артерий Москвы, метро в пешей доступности, а также близость лесопарка «Измайлово» – одной из самых крупных столичных зелёных зон.
Оформить постоянную регистрацию собственники юнитов, увы, не смогут. Зато для сдачи в аренду апартаменты «ЭвоПарк Измайлово» оптимально подойдут.
ПЛЮСЫ
-
Авторский проект
-
Панорамное остекление
-
Функциональные планировки
-
Обжитая локация
-
Пешая доступность метро
-
Удобная транспортная развязка
-
Доступный ценник
-
Высокая степень готовности объекта
-
Опытный застройщик
МИНУСЫ
- Нежилой статус недвижимости
23.05.2025